I had to give myself amnesty from staying current on posts. I got officially overwhelmed with the pace of things on the site. I feel bad about not getting progress shots up but dealing with the real thing takes priority. I decided to just summarize all the progress and just redouble efforts to stay current after that.
1) Main Stair.
The main stair is almost complete so we have full circulation in the house. This shows construction just underway of the landing between the main entry and the kitchen. After a few treads it makes a right angle up to the gallery/master suite.
We are going to be working with an artist named Marc Maiorana to design and fabricate custom stair rails. We discovered his incredible work at Penland School of Crafts in Penland, NC. He’s coming down tomorrow to brainstorm ideas and take measurements. Here is a sample of his work at Penland.
2) Living/Dining. The double high space in the main pod comprising the Living and Dining areas is now framed and roofed. Things are a lot darker in the house but it is wonderful to see the full house shell now complete.
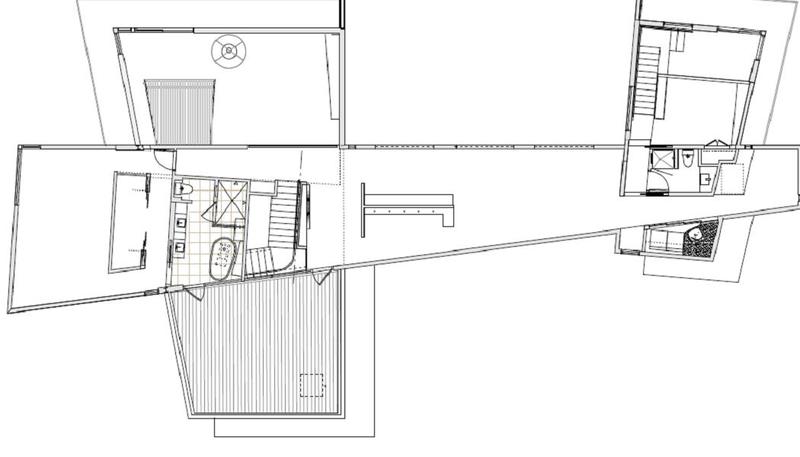
3) Windows. The window installation starts next week and Ellen and I took a great deal of time this past weekend going through the entire house and looking at framed views and angles to verify correct window placement. We decided to move a few windows up a foot of so and swap the two NW corner windows in the master bedroom. We also added a window over the large millwork cabinet on the East wall of the Living Room. I think we did incredibly well on siteing and sizing windows but there is nothing like looking at your actual views to do final tweaks. We went all Pella on our window and door package and they have been great to work with. One of Ellen’s favorite views inside is the view looking south from the living room where you can see up over the glass railing (not in place yet), through the clerestory at the low roof and to the trees south of the carport.
4) Rough in. Electrical rough in is done in the guest pod and ramping up to full speed in the main house. We hit a snag on cable distance for the low voltage track runs. The transformers live in the ¾ height "gallery object" in the bridge and we would have had to run wiring down into the floor, across the gallery, up the walls and into the ceiling but there was no space between the gallery clerestory to get such a large amount of cable through. After many design proposals we settled on extending a small section of the gallery object wall up to the ceiling to enclose the wiring.
HVAC ducts have been marked and they are working on the main arteries of that system. Plumbing rough in is complete on all items they can get to at the moment.
5) The stucco on the upper soffits is about 70 percent done and looks great. They should finish next week.
I am not sure when they will start the stucco on the main pods but if you are looking for a job it is a wonderful view.
6) Millwork. Ellen and I continue to refine the millwork designs. We spent most of the night on Friday working on the main millwork piece for the living room. Here is what we came up with--
7) The bracing in the gallery came down and we can finally experience the full space.
Thanks to all for your patience and for going along on this wonderful ride.
To go in the dark with a light is to know the light. To know the dark, go dark. Go without sight, and find the dark, too blooms and sings, and is traveled by dark feet and dark wings.
Wendell Berry